Санкт-Петербург, 13 линия В. О., дом 70

Время работы: 11:00 — 22:00 ежедневно

ВХОД БЕСПЛАТНЫЙ

!БРОНЬ!

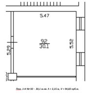
!БРОНЬ НА 30,1 м2 !

 

Помещение на 2 (из 4х) этаже – 

для Творческой мастерской или Офиса

Аренда - с Ноября 2025 года

 

Потолки 3,15 м

2 Окна во двор

Небольшое, стильное, светлое , "белое"

Легкий ремонт

Мощность  = 4,4  кВт

 

Договор от 11 месяцев – от Собственника.

 

Арендная ставка – ОТ 1300 руб./кв. м/мес.

Отдельно оплачиваются эксплуатационные расходы  (КУ) и потребленная электроэнергия

Залог – за 1 месяц

 

К Вашим услугам вся инфраструктура и преимущества известного творческого пространства - Артмуза:
 - креативное окружение : бесплатный Музей, магазины, ресторан, театр , насыщенная творческая жизнь, интересные события - ежедневно выставки и мероприятия Музея и резидентов посещают сотни гостей
 - тихий и зелёный Центр Васильевского острова (Метро - Василеостровская, Спортивная 2) рядом Малый проспект В.О. и остановка общественного транспорта
 - парковка арендаторов - на внутренней территории музея ( по абонементу)
 - круглосуточно охраняемая территория

 

Просмотр = по предварительной договоренности= 

ВСЕ вопросы – обсуждаются!


Форму заявки заполнять НЕ надо =

= Звоните 313 47 03   - в рабочие дни с 10 до 17

 

Помещение освобождается к 01.11.2025